役場からの情報
くらしの情報
役場からの情報
事業者の方へTEL:0155-62-9720
庁舎開庁時間 8時45分~17時30分
受理番号
037
受理日
令和3年5月19日
分野
行政[施設]
発信者
60代女性
内容
5月号ホットボイスの町民支援センター移転の意見に私も同感です。結論ありきで町民の声を聞き入れていない回答です。
中央公民館の今後の使用場所などは決まっているとのことで図面で町民に知らせることが‘開かれた役場‘ではないでしょうか?
また公民館の大ホール等使用時に災害が発生したら避難時の通路に支障をきたすのではないでしょうか。新庁舎に機能を集約したのですから、町民支援センターも是非役場に入り、活発な町づくりに役立てて下さい。
回答日
令和3年5月24日
回答者
魅力創造課魅力創造係
内容
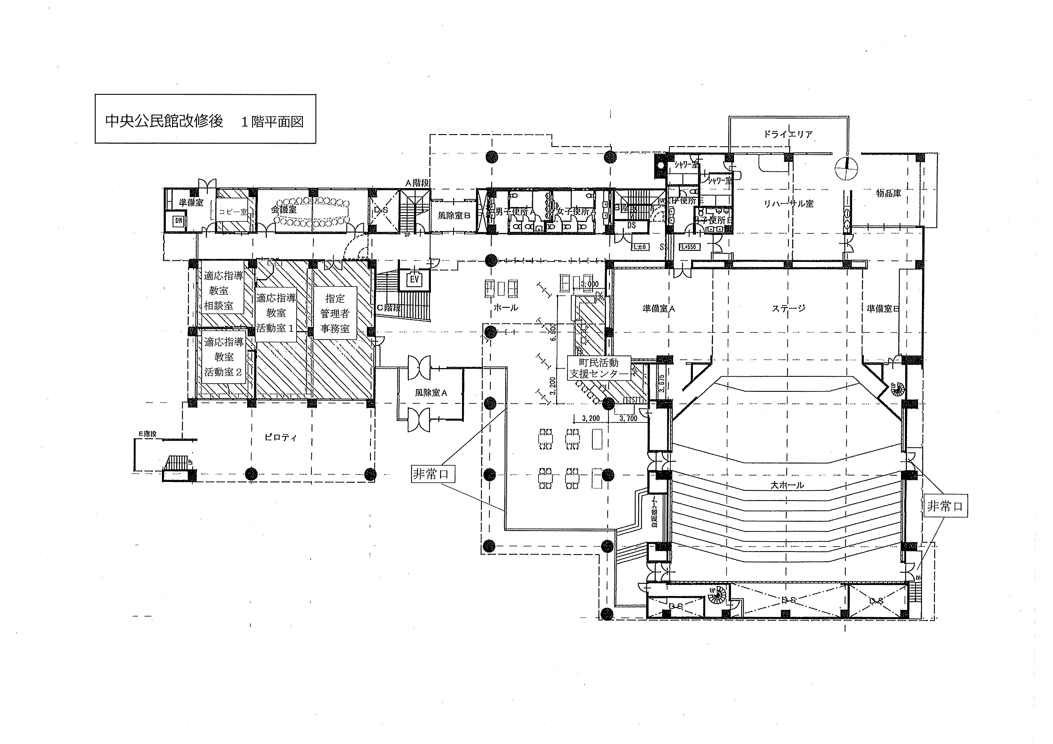
中央公民館の1階の使用については図のとおりとなります。
町民活動支援センターの移転に係る大ホールから避難通路について、大ホール内部や展示ホールに非常口があり、支障を来たすことはありません。
町民活動支援センターは町民のみなさんが気軽に利用しやすい場所ということも考慮して、中央公民館ロビーに移転することをご理解願います。
芽室町役場 政策推進課
TEL 0155-62-9721(直通)
〒082-8651 芽室町東2条2丁目14
より良いホームページにするためにアンケートにご協力ください。Copyright(C)2020 memuro hokkaido.Japan All Rights Reserved